厦门业主不顾反对买下一楼,自己改成洋房,70㎡空间完美逆袭
很多人不愿意买一楼的原因就是一楼比较潮湿,而且没有足够的采光,但是也有的一楼带有小花园,成为很多业主的首选。
今天分享的这套房子就是在一楼,面积是70平方米,坐标厦门,作为90后业主买的第一套房子,对于空间的要求非常的多。父母会来到这里小住,所以要满足一家人不同的需求,空间的舒适性和颜值都要得到保证,大家也一起来看看。

房屋户型:两室
房屋面积:70平方米
装修预算:35万
所在城市:厦门
主要建材:大理石材、烤漆玻璃、天然木皮、进口耐磨地板、特殊磁漆

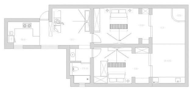
【户型图】

一:把调成采光的天井一分为二,这样一部分空间改造成了业主的休闲院落,打造出足够完善的系统。
二:在玄关增加非常丰富的透明玻璃隔断,让空间的私密性都能得到充分的尊重。
三:在厨房增加了延伸出来的餐桌,空间的功能也能得到很好的互补。

【玄关】

设计重点:组合搭配让空间更实用
玄关选择了长虹玻璃加上收纳柜子的组合,让空间能够拥有一定私密性的保障,同时又形成一种简洁大方的格局状态。
【厨房】

设计重点:优化一个更加简约的动线
厨房的空间强调了色彩上的平衡,绿色白色相互呼应,让整个空间视觉更加的浪漫和轻松。

橱柜的走向经过重新调整之后和空间的结构相匹配。同时也能够拥有一种高级大方的颜值,上方的利用薄荷绿色的吊柜进行呼应,进一步强调空间的活泼气质。
操作台面始终保持一尘不染的状态,为业主带来一种更加干净,合理利落的效果,整个空间都变得相当唯美。
【卫生间】


设计重点:保持氛围的清爽感
卫生间的格局划分比较的详细,洗手台嵌入在背景墙之间的位置上,悬浮设计的手法不会产生任何死角。
【客厅】

设计重点:小巧格局更加利落
客厅的格局比较小巧,为了减少交易效果,取消了原来的吊灯,并且利用筒灯射灯等多样化的灯带进行搭配,让空间变得更加丰富。

客厅一侧的背景墙还利用穿衣镜进行修饰,平时可以自由使用的同时也让空间的整体效果得到了开放处理。

背景墙利用立体瓷砖进行搭配,简约,而且充满鲜活的层次感,摆放了超大的电视机进行修饰,空间整体的观影效果得到充分的保证。
【卧室】

设计重点:和户外空间紧密相连
睡眠空间进行了一定程度的延伸,并且通过玻璃推拉门让户外的空间能够和卧室紧密相连。

在不可以拆除的承重墙两侧都安装了不同容量的收纳柜和书桌,空间的衔接得到充分的保证。

卧室外面还有一个小院子,拥有一种相当休闲的气质,角落里还栽种了一棵小树苗,象征着生命的活力。

小卧室的格局大体相似,但是色彩搭配更加的清爽,同时在背景墙还选择白色的瓷砖进行呼应,搭配出更加丰富的浪漫气息。

小卧室和户外的院子,同样可以做到自然衔接,地面还选择了懒人沙发进行搭配,拥有一种更加慵懒的体验感。
【餐厅】

设计重点:保持整体的简洁大气
餐厅的整个空间进行适当的延伸,通过吧台来充当餐桌,让空间整体的功能和氛围得到足够的保证。
整个餐厅的规划非常的充实,通过背景墙的瓷砖,空间整体更加的纯粹。

设计师充分发挥出这套房子的潜力和优势,真正地实现了空间的逆袭。
【图片若有侵权,麻烦私信删稿】


